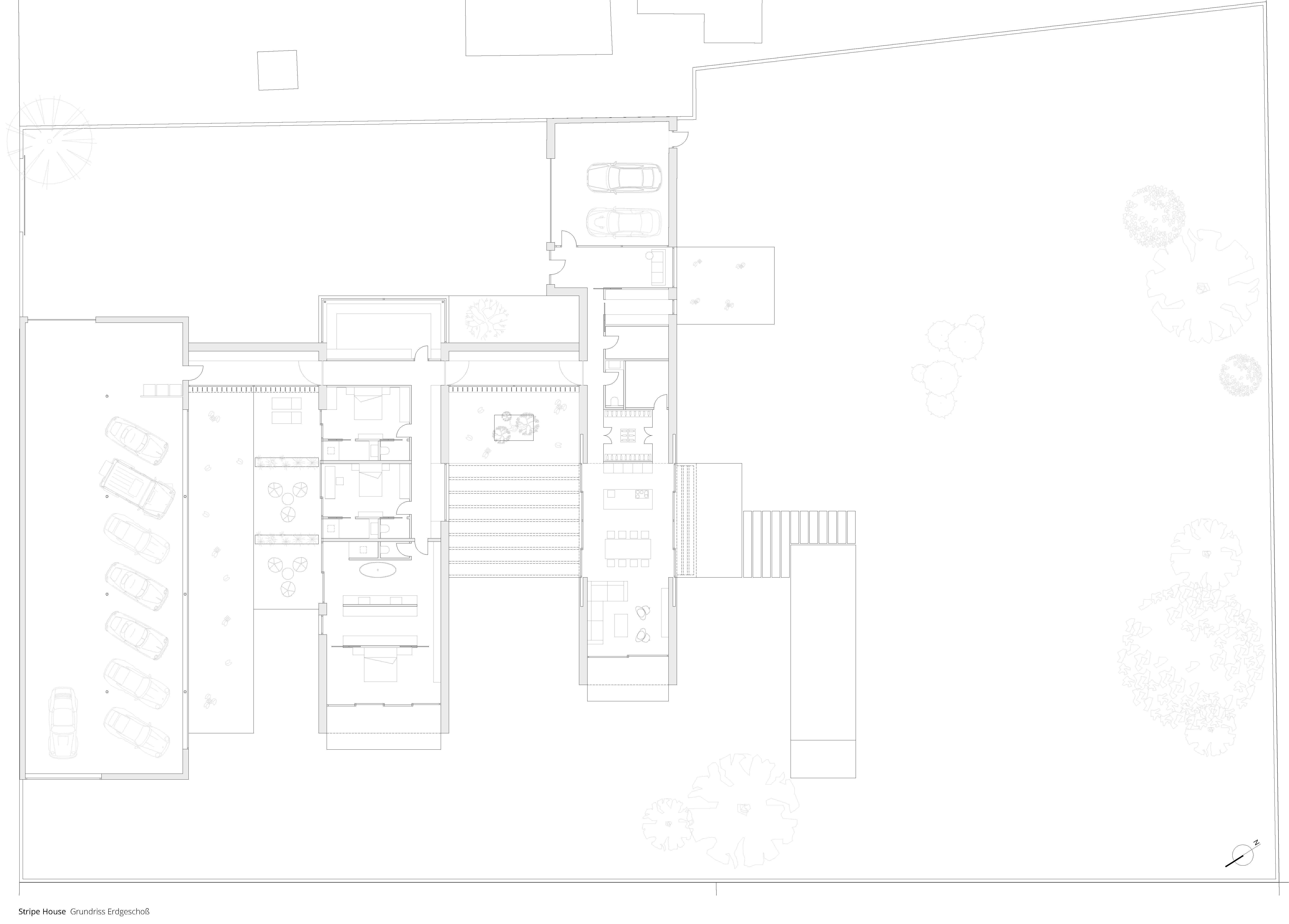
Das Stripe House wurde für einen Autoliebhaber entworfen und folgt einem klaren architektonischen Konzept der funktionalen Trennung. Mehrere lineare Baukörper gliedern das Gebäude in unterschiedliche Nutzungsbereiche, wobei sich die jeweilige Funktion bewusst in der Gebäudehöhe widerspiegelt – je höher die Nutzungspriorität, desto markanter der Baukörper.
Die Architektur ist geprägt von einer klaren Formsprache und reduzierten Gestaltung. Zwischen den einzelnen Riegeln entstehen geschützte Außenräume, die als Rückzugsorte dienen und den Wohnraum ins Freie erweitern. Die gezielte Ausrichtung der Baukörper rahmt die Landschaft und erzeugt spannungsvolle Blickbeziehungen.
Von der Wohnküche aus eröffnen sich Sichtachsen zu mehreren Außenbereichen, während die visuelle Verbindung zwischen Schlafzimmer und Garage die Leidenschaft des Bauherrn für Automobile subtil in das architektonische Konzept integriert. Ein Pool ergänzt das Ensemble und sorgt an heißen Sommertagen für Abkühlung.





.jpeg)

